Oferty działek na sprzedaż

grunty rolne, rekreacyjne, pod zabudowę jedno i wielorodzinną, usługowo - handlowe, magazynowo - produkcyjne
Darmowe ogłoszenia działek
Baner
Większa ilość filtrówRozwiń więcej filtrów
Syndyk sprzeda działkę rolną - Dzięgielewo  -
mazowieckie Zdjęcie nr 1
Syndyk sprzeda działkę rolną - Dzięgielewo  -
mazowieckie Zdjęcie nr 2
Syndyk sprzeda działkę rolną - Dzięgielewo  -
mazowieckie Zdjęcie nr 3
Syndyk sprzeda działkę rolną - Dzięgielewo  -
mazowieckie Zdjęcie nr 4
Syndyk sprzeda działkę rolną - Dzięgielewo  -
mazowieckie Zdjęcie nr 5



Co to jest identyfikator działki ewidencyjnej?



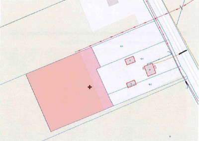
Syndyk sprzeda działkę rolną - Dzięgielewo

Dzięgielewo, gm. Gozdowo, pow. sierpecki, mazowieckie
Powierzchnia terenu: 5000 m²
13 800 zł
2,76 zł/m²
info Raport i analiza działki - poproś sprzedającego o identyfikator działki

Kontakt:
Wyślij pytanie
Administer Polska Spółka Z Ograniczoną Odpowiedzialnością
Biuro nieruchomości
Dane działki
Powierzchnia:
5000 m²
Rodzaj prawa:
własność
Typ działki - przeznaczenie:
  • rolna
Sprawdź stawki podatku od nieruchomości (SP-1 baza danych i opracowania)
C-Profes - wyceny
Lokalizacja
Województwo:
mazowieckie
Powiat:
sierpecki
Gmina:
Gozdowo
Miejscowość:

Dowiedz się wiecej o miejscowości
Opis
Syndyk masy upadłości Jadwigi Pakulskiej – osoby fizycznej nieprowadzącej działalności gospodarczej sprzeda z wolnej ręki prawo własności:
e)niezabudowanej działki gruntu (grunty orne) położonej Dzięgielewo, gm. Gozdowo – KW PL1E/00026924/5.
Krajowemu Ośrodkowi Wsparcia Rolnictwa przysługuje prawo pierwokupu i odkupu co do nieruchomości z lit. a, b, d i e.
Minimalna cena składnika z lit.:
e)13.800 zł netto.
Minimalna cena jest niższa o 40% od ceny wynikającej z operatów szacunkowych z dnia 25.09.2025 r. i 18.10.2025 r. opracowanych przez rzeczoznawcę majątkowego Wojciecha Jasińskiego (uprawnienia nadane przez Ministra Infrastruktury i Budownictwa nr 2424). W/w rzeczoznawca jest również biegłym sądowym przy SO w Płocku.
Termin składania ofert: do 31.03.2026 r.
Sposób składania ofert jest podany na stronie internetowej syndyka w zakładce Ogłoszenia syndyka (nieruchomości).
Istnieje możliwość przesłania operatu szacunkowego za pośrednictwem poczty elektronicznej.
Dane kontaktowe syndyk Anny Borysewicz: nr tel. 600 545 232; e-mail: anna.borysewicz [małpka] w p . p l.

Kontakt:
tel. zadzwoń
Wyślij pytanie
Administer Polska Spółka Z Ograniczoną Odpowiedzialnością
Biuro nieruchomości


Data dodania ogłoszenia: 2026-03-24




Podobne oferty


Zobacz artykuły


Miejscowy plan zagospodarowania przestrzennego, a studium uwarunkowań i kierunków zagospodarowania przestrzennego. Miejscowy plan zagospodarowania przestrzennego, a studium uwarunkowań i kierunków zagospodarowania przestrzennego.
Przy planowaniu inwestycji na nieruchomościach gruntowych, kluczowym elementem jest dostosowanie się do wymogów miejscowego planu zagospodarowania przestrzennego (MPZP). W przypadku jego braku może być przydatna analiza studium uwarunkowań i kierunków zagospodarowania przestrzennego (SUiKZP).
Sprawdź
Jak sprawdzić czy teren jest zalewowy? Jak sprawdzić czy teren jest zalewowy?
Wybór działki pod budowę domu to często jedna z najważniejszych decyzji w życiu, bo w wielu przypadkach jej skutki będą towarzyszyły nam przez wiele lat. Przed podjęciem tej decyzji warto jednak zweryfikować położenie działki, m.in. pod kątem zagrożeń związanych z powodzią. W Polsce grunty narażone na niebezpieczeństwo powodzi nie są rzadkością, dlatego przy zakupie działki takie zagrożenie trzeba mieć na uwadze.
Sprawdź
Zakup działki nad jeziorem – co musisz wiedzieć? Zakup działki nad jeziorem – co musisz wiedzieć?
Zakup działki nad jeziorem to marzenie wielu osób szukających nie tylko wypoczynku, ale również spokojnego miejsca do życia lub po prostu bezpiecznej inwestycji. Większość z nas lubi bliskość wody, kontakt z naturą i ciszę, dlatego tego typu działki są coraz bardziej popularne. Zakup działki nad jeziorem wiąże się jednak często z dodatkowymi rzeczami, które należy wziąć pod uwagę. Są to kwestie formalne i praktyczne – od rodzaju działki, przez jej uzbrojenie, po możliwość budowy domu nad jeziorem zgodnie z obowiązującym prawem.
Sprawdź
C-profes 700-200 swiadectwa


Co to jest księga wieczysta i jak ją sprawdzać? Co to jest księga wieczysta i jak ją sprawdzać?
Przed zakupem działki należy sprawdzić szereg czynników mogących wpływać na atrakcyjność transakcji. W poprzednich artykułach opisywaliśmy co należy sprawdzić w kontekście zakupu działki. Jednym ze źródeł informacji o nieruchomości gruntowej, które należy obligatoryjnie sprawdzić jest księga wieczysta. Ale co to właściwie jest księga wieczysta i jak ją weryfikować? O tym w dalszej części artykułu.
Sprawdź
Rosnące ceny energii a rynek nieruchomości — czy budynki energooszczędne sprzedają się szybciej? Rosnące ceny energii a rynek nieruchomości — czy budynki energooszczędne sprzedają się szybciej?

Rynek nieruchomości w Polsce zmienia się dynamicznie, a jednym z najważniejszych czynników kształtujących decyzje kupujących są obecnie rosnące koszty energii. Wysokość rachunków za ogrzewanie i prąd zaczyna wpływać zarówno na wartość nieruchomości, jak i na czas potrzebny do jej sprzedaży. Kupujący coraz częściej zwracają uwagę na to, jak budynek został wykonany, jakie ma instalacje oraz jakie generuje koszty eksploatacji. W artykule analizujemy, jak wzrost cen energii oddziałuje na rynek, oraz czy domy o niższym zapotrzebowaniu na energię rzeczywiście sprzedają się szybciej niż pozostałe.

Sprawdź
Uzbrojenie działki: kluczowe elementy, jak je sprawdzić i co warto wiedzieć? Uzbrojenie działki: kluczowe elementy, jak je sprawdzić i co warto wiedzieć?
Dostępność uzbrojenia to ważny czynnik świadczący o atrakcyjności działki, determinuje często zasadność lokalizacji inwestycji w danym miejscu lub wysokość zakładanych przez inwestorów kosztów. Bez właściwego uzbrojenia terenu, realizacja planów może być utrudniona lub nawet niemożliwa. Dlatego w tym artykule postaramy się przybliżyć nieco kwestie takie jak to, czym jest właściwie uzbrojenie działki, jakie są najważniejsze elementy sieci uzbrojenia oraz jak i gdzie je sprawdzić.
Sprawdź

Browwar pion



CDWEB